Facebook PageView
ERA Real Estate - Trusted by Generations

About this New Launch

New Launch Details

Type:
Developer:
Units:
Vacant Possession Date (TOP):
-

Description

Location

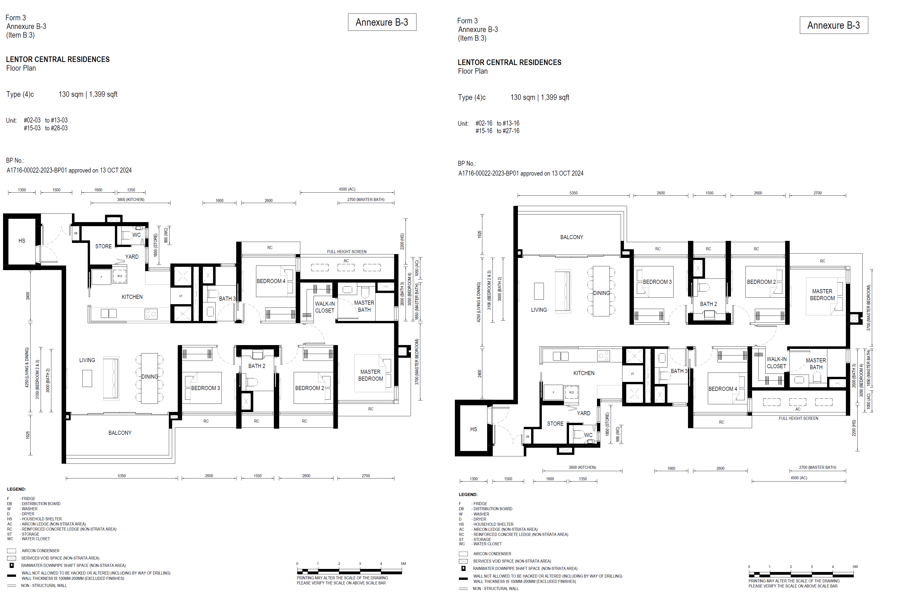
Site/Floor Plan

Ask Me Anything

Please feel free to contact us by clicking the button below and we will respond to you as soon as possible. We look forward to assisting you!